
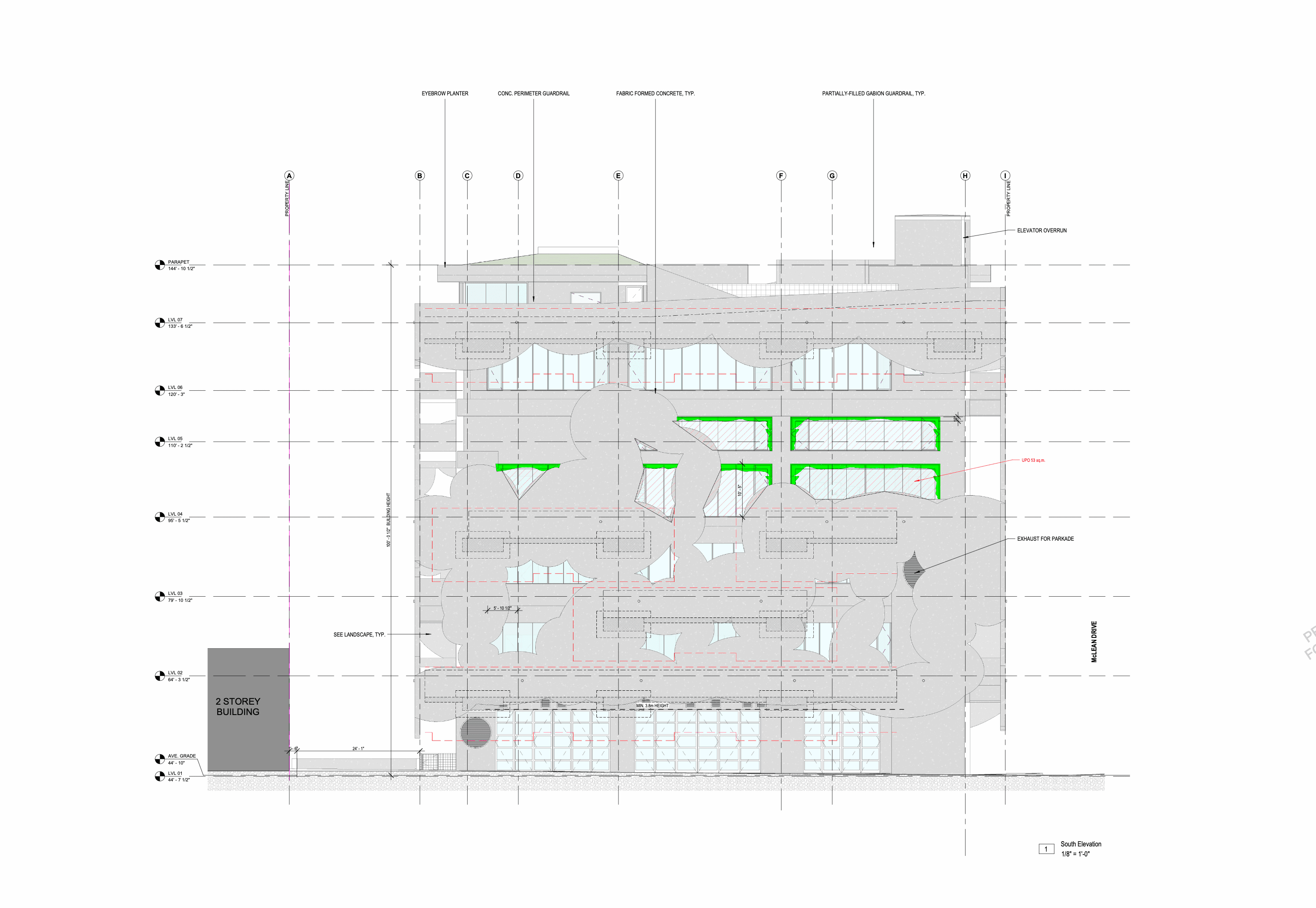
Over the past three years, Austen has specialized in 3D modeling and rendering the intricate forms of the 86 HQ Bocci building, focusing on both interior and facade. Utilizing Blender, Rhino, and Unreal for VR simulations, creating detailed physical mock-ups and coordinated technical drawings in Revit and CAD. The 50,000 ft², 5-story building in Vancouver, Canada, designed for Bocci, includes exhibition spaces, a restaurant, bicycle parking, interconnected glass ateliers, studios, and more. Innovative construction techniques, like using hay bales wrapped in loose fabric for concrete formwork, resulted in unique interior volumes and window forms. The building’s location between residential and industrial neighborhoods makes it a community focal point.











SPECIFICS
Prototyping
Architectural Design
Concept Design
Construction Development
TECHNOLOGIES
CAD
Rhino
Revit
Architecture
Unreal Engine
Sketchup
Grasshopper
Enscape
CREDITS
PROJECT LEAD Omer Arbel CLIENT Bocci CONTRACTOR Luis Gil of LRG Construction ARCHITECT OF RECORD Christopher Gowing of MGBA Architecture PROJECT TEAM Omer Arbel, Apollinaire Au, Austen Goodman, Ashley Graham
PROCESS



















